Grootste aanbod
Op werkdagen vóór 15:30 besteld, zelfde dag verstuurd
Deskundig advies
Europees Fabricaat
Een legplan is gratis bij bestelling van een collector en één of meer vloerverwarmingsbuizen. Klik hier om een legplan aan te vragen.
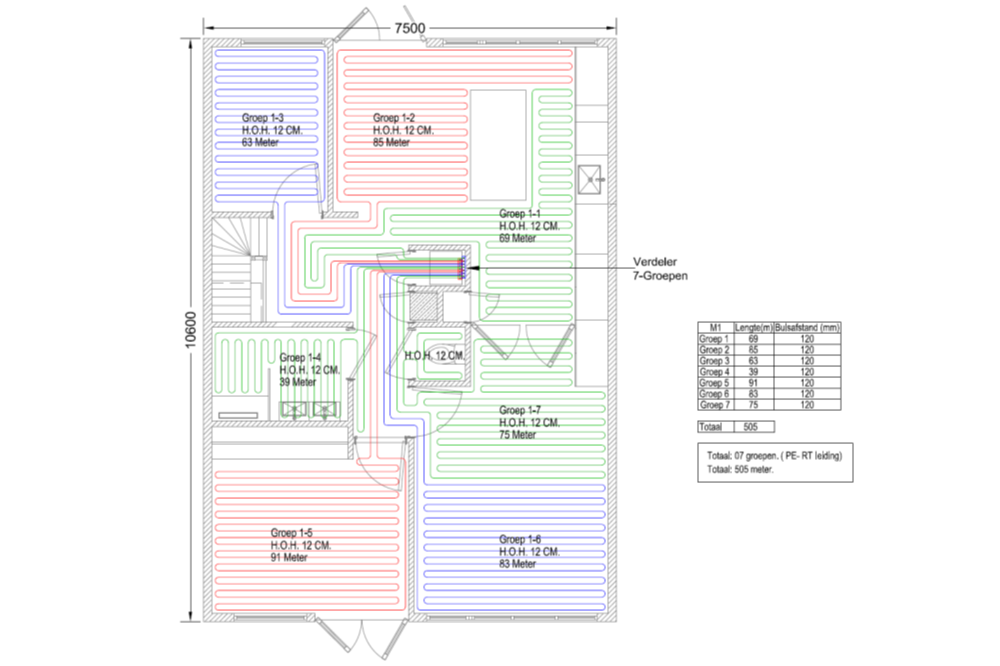
Als u zelf een watergedragen vloerverwarmingssysteem gaat installeren, dan wilt u de buizen van het systeem natuurlijk zo gunstig mogelijk aanleggen. Wanneer u een plattegrond van de ruimte(s) beschikbaar heeft, dan kunnen wij voor u een legplan uitwerken. In dit plan ziet u dan onder andere het legpatroon, de buislengtes en het aantal vloerverwarmingsgroepen terug.
Om het legplan volledig te kunnen afstemmen op uw situatie en om het systeem zo optimaal mogelijk in te tekenen, zijn er een aantal zaken van belang;

Een tekening voor het maken van een legplan kan worden aangeleverd in AutoCAD, PDF, PNG of JPEG. Als u ervoor kiest om de plattegrond aan te leveren als afbeelding in PNG of JPEG, zorg er dan wel voor dat de resolutie groot genoeg is. Daarnaast moeten de afmetingen van de ruimte(s) duidelijk zichtbaar zijn om de plattegrond te kunnen schalen.
De plaats van de collector is het eerste uitgangspunt bij het intekenen van de vloerverwarming-buizen. Het is daarom belangrijk om voorafgaand aan installatie na te denken over de meest geschikte plek voor de verdeel-unit.
Zorg er altijd voor dat het legplan gemaakt kan worden op basis van een definitieve (bouw-) tekening waarop vaste objecten zijn ingetekend. Zo wordt vloerverwarming in de meeste gevallen niet doorgelegd onder een kookeiland of aanrechtblok in een keuken of een badkuip in een sanitaire ruimte.
Mochten er wijzigingen moeten worden doorgevoerd, omdat de indeling verandert, dan worden hiervoor kosten in rekening gebracht (deze kosten bedragen € 10,00 per groep).
Een gratis legplan kan eenmalig worden aangevraagd voor geplaatste bestellingen of na akkoord op een uitgebrachte offerte. De bestelling of offerte dient ten minste te bestaan uit een collector en één of meer vloerverwarmingsbuizen.
Als u, ná aanvraag van het legplan, besluit om uw bestelling te annuleren of af te zien van bestellen dan worden hiervoor kosten in rekening gebracht. Deze kosten bedragen € 15,00 per groep van de collector.

Houdt er altijd rekening mee dat wij geen legplan kunnen maken op basis van foto's, handgemaakte schetsen of tekeningen die niet op schaal zijn.
Het is niet mogelijk om (tegen betaling) een legplan aan te vragen voor materialen die niet via onze webshop zijn aangekocht.
Wanneer u van de mogelijkheid voor een gratis legplan gebruik wilt maken, dan kunt u hier uw aanvraag indienen.
Normaal gesproken is een legplan binnen vijf werkdagen beschikbaar en zal deze per e-mail toegestuurd worden in auto-cad en/of pdf.
Mocht u meer informatie willen over het aanleggen van watergedragen vloerverwarming, dan kunt u altijd onze kennisbank raadplegen. Als u specifieke wensen heeft dan kunt u uiteraard ook contact met ons opnemen of eerst een materialen offerte aanvragen.
|
|
| Omdat vloerverwarming in één keer goed moet. |